+49 (0) 461 5808-2000
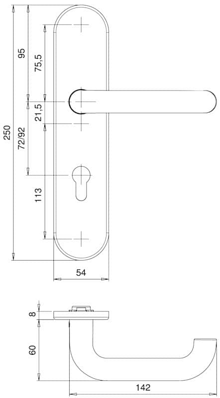
Vollblatt Sicherheits-Wechselgarnitur Europa 8648/0792,Langschild,ES 2,mit Zylinderabdeckung 92/10,DIN Links-Rechts,edelstahl matt,Türstärke65-75,rund/U-Form fest