+49 (0) 461 5808-2000
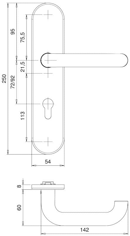
Vollblatt Sicherheits-Wechselgarnitur Delta 8732/0272,Langschild,ES 3,mit Zylinderabdeckung 72/8,DIN Links-Rechts,edelstahl matt,Türstärke36-48,gekröpft/U-Form fest