+49 (0) 461 5808-2000
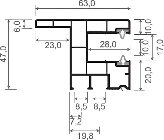
Mini-Rollladenführung 63x47 mm Lg. 6,50 m foliert, GK Grau, mit Nase, mit schwarzen Weichlippen 70 1205-167 BASALTGRAU [52]