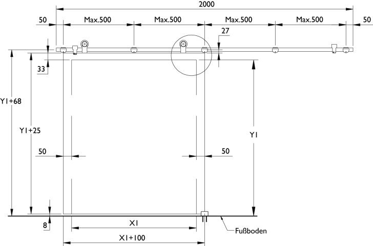
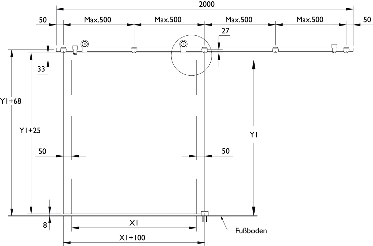
Schiebetürbeschlag für Holztüren ohne Zarge, für 1-flg. Türen bis 1000 mm Türbreite, bestehend aus: Laufschiene 2000 mm, 2 Laufwagen, Bodenführung, 2 Stopper oben, 5 Wandbefestigungen, Oberfl. 60 (Ede
more details
stainless steel