Zusätzliche Nebenverriegelung für schlüsselbetätigte Mehrfachverriegelungen
mehr erfahren
Zusätzliche Nebenverriegelung für schlüsselbetätigte Mehrfachverriegelungen
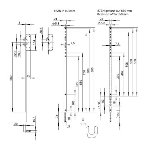
Flachstulp (Standardausführung) 24 x 3 mm
Für MFV mit Stulplänge 1770, 1970, 2390 mm
Hinweis Stulplänge Für Stulplänge 1970 mm nicht kürzbar
Hinweis U-Stulp Alle U-Stulpen werden mit Endkappen geliefert, Bei U-Stulpen ändert sich das Dornmaß um -1 mm
Kastenbreite 45 mm
Kastenhöhe 154 mm
Kastenmaterial Stahl verzinkt
Kastentiefe 15,5 mm
Nebenverriegelung Schwenkhaken 1-fach, Schwenkhaken 2-fach
Riegelart Schwenkhaken
Riegelausschluss 20 mm
Riegeltour 1-tourig
Selbstverriegelung Ja
Stulplängen 500, 800 mm (Länge kürzbar um 150 mm)
Stulpmaterial Edelstahl rostfrei
U-Stulp (Standardausführung) 24 x 6 mm
Serie 8700
Riegelausschluss: 20 mm
Riegeltour: 1-tourig
Verwendung: Für einflügelige und zweiflügelige Rohrrahmentüren aus Aluminium und Stahl
Zertifiziert nach EN 1125: Ja
Zertifiziert nach EN 179: Ja
Für einbruchhemmende Türen nach DIN EN 1627-1630 RC3
silber