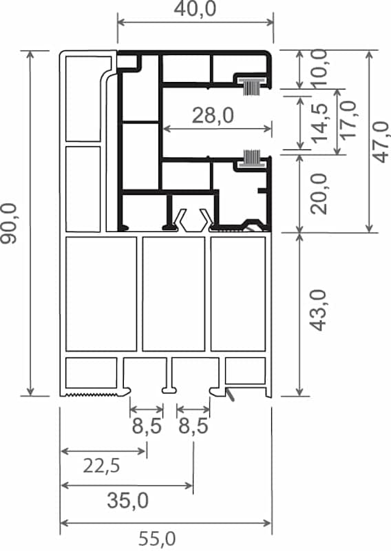
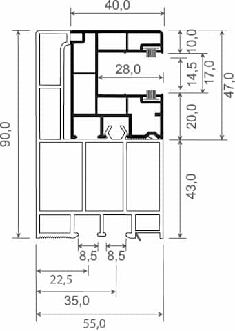
Adapterprofil 55x90 mm Lg. 6,50 m foliert, Revision außen & Rollladenführung 40x47 mm Lg. 6,50 m mit zwei schwarzen Bürsten GK Braun 209 7013-167 MAHAGONI [9]
mehr erfahren
Kunststoff