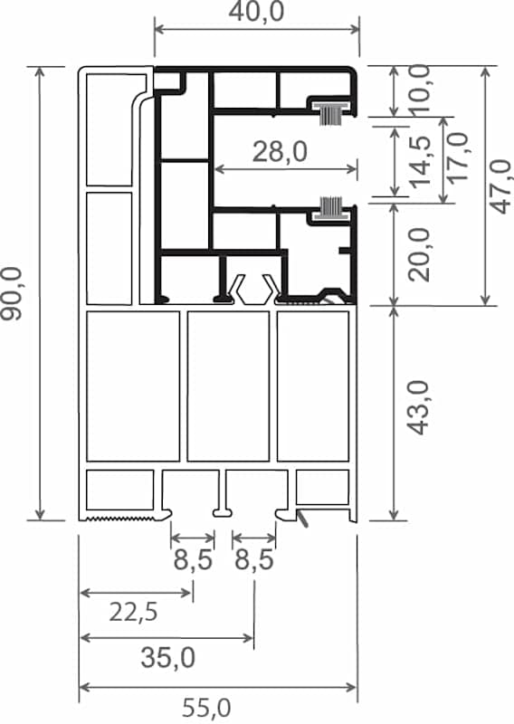
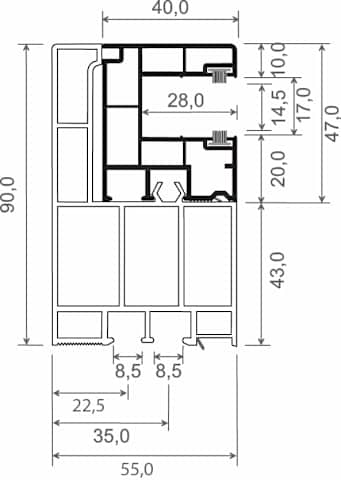
Adapterprofil 55x90 mm Lg. 6,50 m foliert, Revision außen & Rollladenführung 40x47 mm Lg. 6,50 m mit zwei schwarzen Bürsten GK Braun 51 5005-167 STAHLBLAU [45]
mehr erfahren
Kunststoff