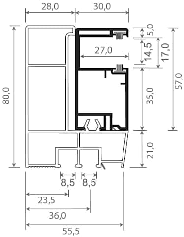
Adapterprofil 80x58 mm Lg. 6,00 m foliert, Revision außen & Rollladenführung 57x30 mm Lg. 6,00 m GK Braun, mit zwei schwarzen Bürsten 88 7505-167 SCHOKOBRAUN [73]
mehr erfahren
Kunststoff