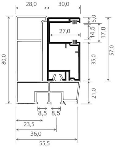
Adapterprofil 80x58 mm Lg. 6,00 m foliert, Revision außen & Rollladenführung 57x30 mm Lg. 6,00 m GK Grau, mit zwei schwarzen Bürsten 436 1004 METBRUSH PLATIN [96]
mehr erfahren
Kunststoff