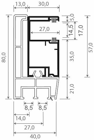
Adapterprofil 80x43 mm Lg. 6,00 m foliert, Revision außen & Rollladenführung 57x30 mm Lg. 6,00 m GK Braun, mit zwei schwarzen Bürsten 436 3041 NOCE SORRENTO NATURE [106]
mehr erfahren
Kunststoff