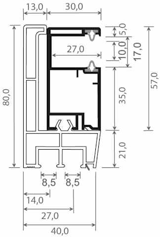
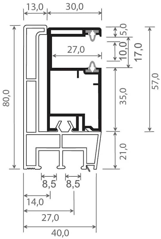
Adapterprofil 80x43 mm Lg. 6,00 m foliert, Revision außen & Mini-Rollladenführung 57x30 mm Lg. 6,00 m GK Weiß, mit zwei grauen Weichlippen 71 5505-167 SILBERGRAU [66]
mehr erfahren
Kunststoff