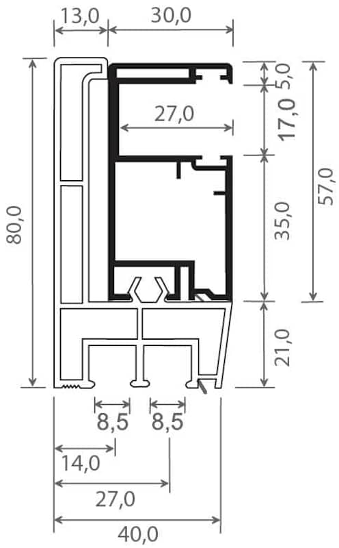
Adapterprofil 80x43 mm Lg. 6,00 m foliert, Revision außen & Rollladenführung 57x30 mm Lg. 6,00 m GK Weiß, ohne Bürste 61 2505-167 DUNKELGRÜN [49]
mehr erfahren
Kunststoff