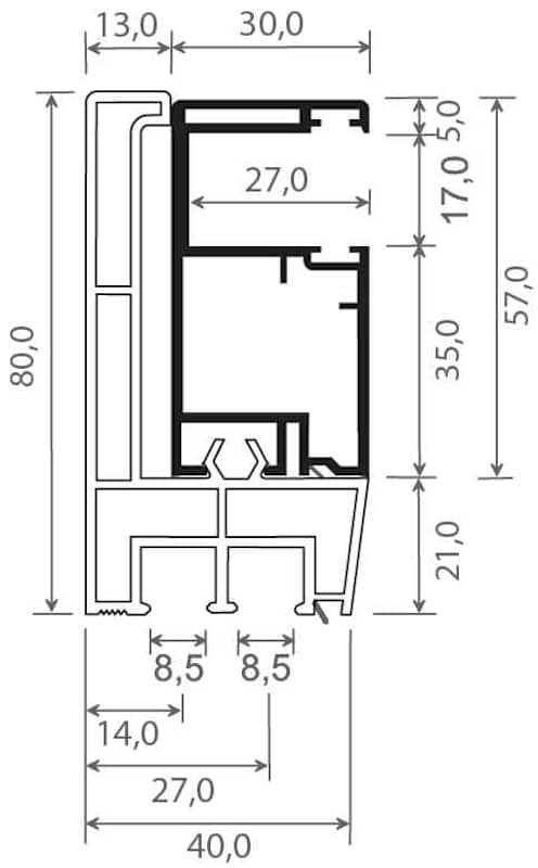
Adapterprofil 80x43 mm Lg. 6,00 m foliert, Revision außen & Rollladenführung 57x30 mm Lg. 6,00 m GK Grau, ohne Bürste 129 3001-195 CROWN PLATIN [3]
mehr erfahren
Kunststoff