+49 (0) 461 5808-2000
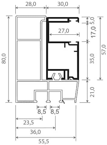
Adapterprofil 80x58 mm Lg. 6,00 m foliert, Revision außen & Rollladenführung 57x30 mm Lg. 6,00 m GK Grau, ohne Bürste 436 1014 ALUX DB 703 [100]