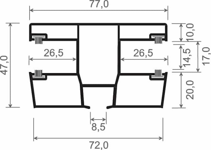
Doppel-Rollladenführung 77x47 mm Lg. 6,00 m foliert, mit vier schwarzen Bürsten GK Braun 446 6010 SCHWARZBRAUN MATT [209]
mehr erfahren
Kunststoff