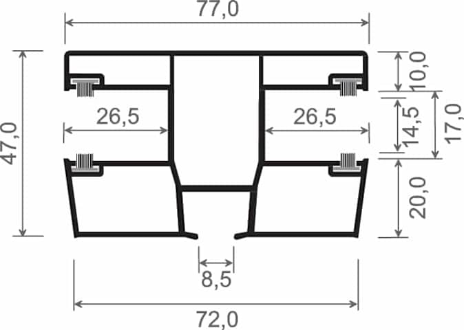
Doppel-Rollladenführung 77x47 mm Lg. 6,00 m foliert, mit vier schwarzen Bürsten GK Braun 436 3059 WALNUSS TERRA [111]
mehr erfahren
Kunststoff