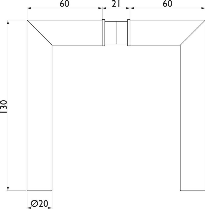
Glastür-Schlosskasten 6012 BB - Venezia, Buntbart gelocht (inkl. 1 Schlüssel), inkl. Bandpaar 6215, und Drückerpaar 1902.AL-F1, Oberfl. F1 (silberfarben eloxiert)
mehr erfahren
silber