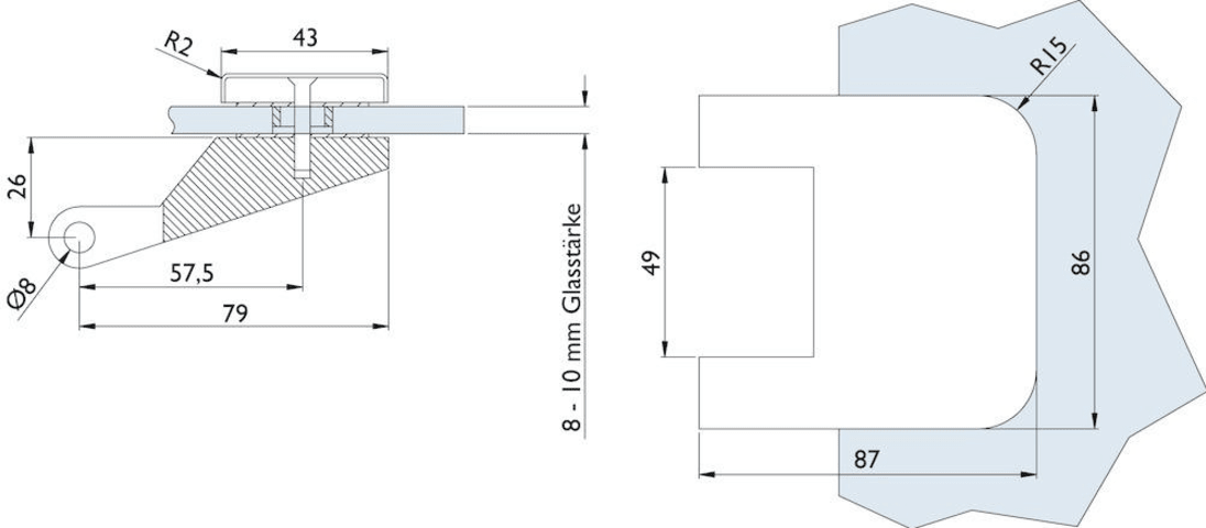
Glastür-Schlosskasten 6012 BB - Venezia, Buntbart gelocht (inkl. 1 Schlüssel), inkl. Bandpaar 6315, Oberfl. F1 (silberfarben eloxiert)
mehr erfahren
silber