Hauptschloss schlüsselbetätigt 200-8250/4598PALA

HS.8250.45.92.8.PZ.SCHI.LS.F=AN..

mehr erfahren
Meesenburg Artikelnummer: 0000360468
Meesenburg Artikelbezeichnung: HAUPTSCHLOSS 8250 F. AS8250/45/92/8 PZ VE=5 KFV 3205393
Hersteller Artikelnr.: 3205393
Verkaufseinheit
x
Anzahl:
=
Stück
Online Verfügbarkeit
Standort Verfügbarkeit
Verfügbarkeitsabfrage und Standortinformationen. Click & Collect ist aktuell noch nicht verfügbar.
Preise nur für Meesenburg Kunden
Produkteigenschaften
Produkteigenschaften

Beschreibung

HS.8250.45.92.8.PZ.SCHI.LS.F=AN..
Produkteigenschaften
Feuerschutz
Nein
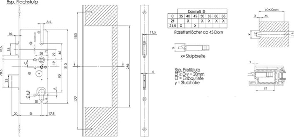
Entfernung
92 mm
Richtung
links/rechts
Lochung
Profilzylinder
Ausführung (Schlosskasten)
geschlossen
Stulpform
ohne Stulp
Drückernuss Vierkant
8 mm
Türart

Haustür

Dornmaß
45 mm
Riegelausschluss (Maß)
20 mm
Schlosskastenhöhe
210 mm
Marke
KFV

Kontaktinformation des Herstellers

KFV Karl Fliether GmbH & Co. KG
Siemensstraße 10
42551 Velbert
Deutschland
Tel.: +49 20512780
Fax: +49 2051278167
E-Mail: info@kfv.de
chevron-left rechnung-logo AlertBrowse fileDownload fileFileImagePdfPdfWordTextExcelPowerpointArchiveCsvAudioVideoSpinnerCalendarSort NoneSort ASCSort DESCReturn arrowVisibleVisibleHelmetSkrewWorker