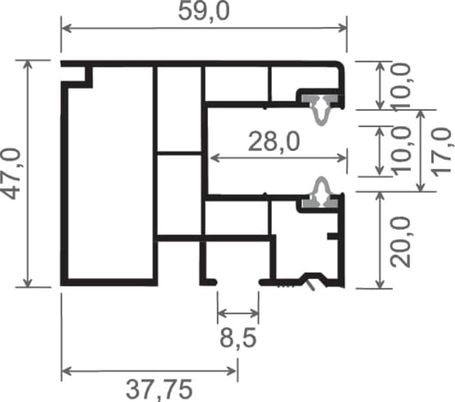
Mini-Rollladenführung 59x47 mm Lg. 6,50 m foliert, mit zwei schwarzen WL GK Grau 71 5505-167 SILBERGRAU [66]
mehr erfahren
Kunststoff