Menke Kammerprofil 50X7 mm selbstklebend 078246 K mit Nase SAPELI 2065021-167

Kammerprofil mit 7 mm Höhe

mehr erfahren
Meesenburg Artikelnummer: 0000350001
Meesenburg Artikelbezeichnung: PVC-KAMMERPROFIL 50X7 MM SELBSTKL. 078246 K M.NASE SAPELI 2065021-167
Hersteller Artikelnr.: 078246 K 5021
EAN: 4055032055272
Verkaufseinheit
x
Anzahl:
=
Meter
Online Verfügbarkeit
Standort Verfügbarkeit
Verfügbarkeitsabfrage und Standortinformationen. Click & Collect ist aktuell noch nicht verfügbar.
Preise nur für Meesenburg Kunden

Produktvorteile

selbstklebend
hochwertiges Schaumklebeband
mit Nase
Produkteigenschaften
Produkteigenschaften

Beschreibung

Kammerprofil mit 7 mm Höhe

Produkteigenschaften
Technische Daten

Ausdehnung:

weiße Profile = min. 0,3 % der Verarbeitungslänge

folierte Profile bzw. dunkle Farben = min. 0,5 % der Verarbeitungslänge

Die Klebefläche muss mit geeignetem Reiniger gereinigt werden um eine glatte, saubere, trockene, staub- und fettfreie Fläche zu bekommen. Die Hauptklebefläche muss das Kunststofffenster sein.

Kaschierte Verleistungsprofile mit Schaumklebeband sind für den Außenbereich nicht geeignet!

Bei der Entfernung der Schutzfolie darf die Abziehtemperatur (Oberflächen- und Umgebungstemperatur) nicht unter +10 °C liegen!

Produkteigenschaften

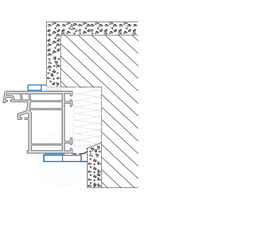
Das Kammerprofil wird im Innenbereich an das Mauerwerk angelegt und auf dem Blendrahmen verklebt.

selbstklebend
Ja
Oberfläche
geprägt
Farbcode
206 5021-167
Folienfarbe
sapeli
Material

Kunststoff

Breite
50 mm
Höhe
7 mm
Länge
6000 mm
Stärke
1 mm
Marke
Menke

Kontaktinformation des Herstellers

Menke Kunststoffe GmbH & Co. KG
Mescheder Schling 1
59581 Warstein
Deutschland
Telefon: +49 290297080
E-Mail: info@mk-profile.de
chevron-left rechnung-logo AlertBrowse fileDownload fileFileImagePdfPdfWordTextExcelPowerpointArchiveCsvAudioVideoSpinnerCalendarSort NoneSort ASCSort DESCReturn arrowVisibleVisibleHelmetSkrewWorker