+49 (0) 461 5808-2000
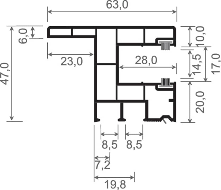
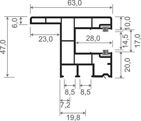
Rollladenführung 63x47 mm Lg. 6,00 m foliert, mit Nase, mit zwei schwarzen Bürsten GK Grau 436 5050 SCHIEFERGRAU CONTINENTAL [142]