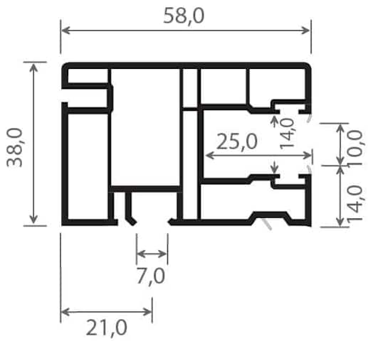
Mini-Rollladenführung 58x38 mm Lg. 6,50 m foliert, mit zwei schwarzen Weichlippen GK Grau 70 3905-083 QUARZGRAU GLATT [63]
mehr erfahren
Kunststoff