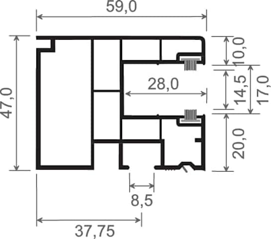
Maxi-Rollladenführung 59x47 mm Lg. 6,50 m foliert, GK Braun, mit zwei schwarzen Bürsten 316 2002-167 MACORÉ [26]
mehr erfahren
Kunststoff