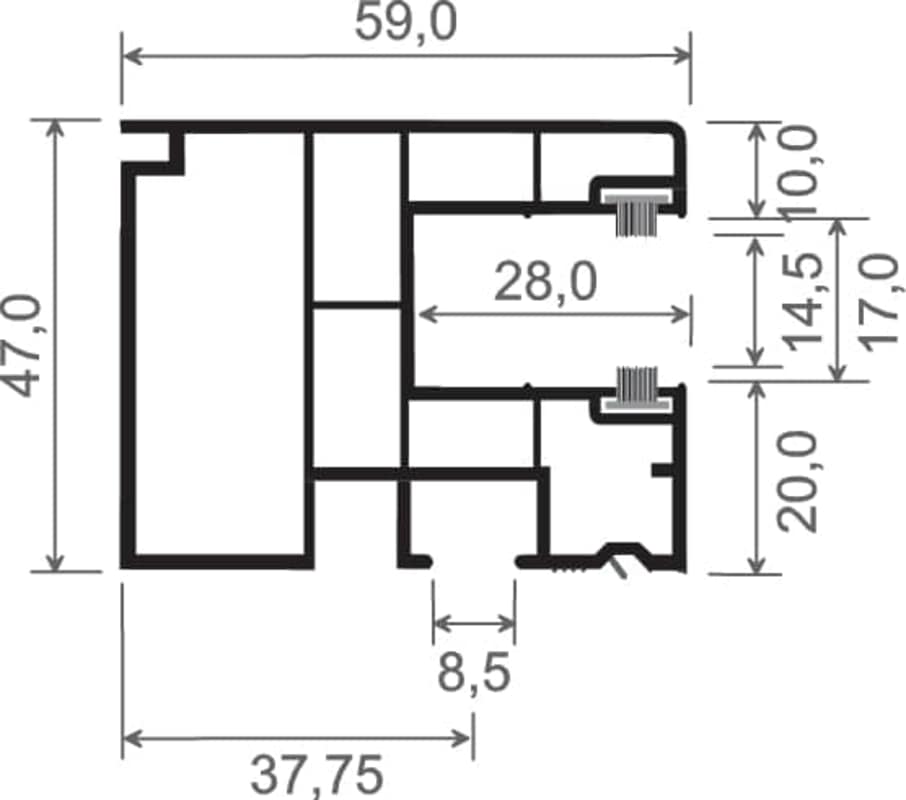
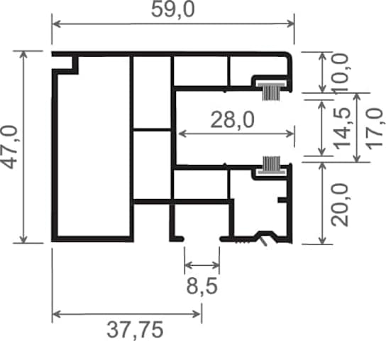
Maxi-Rollladenführung 59x47 mm Lg. 6,50 m foliert, GK Braun, mit zwei schwarzen Bürsten 49254 VERMONT [85]
mehr erfahren
Kunststoff