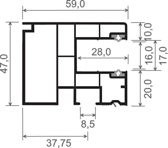
Maxi-Rollladenführung 59x47 mm Lg. 6,50 m foliert, GK Braun, mit zwei schwarzen Weichlippen 61 2505-167 DUNKELGRÜN [49]
mehr erfahren
Kunststoff