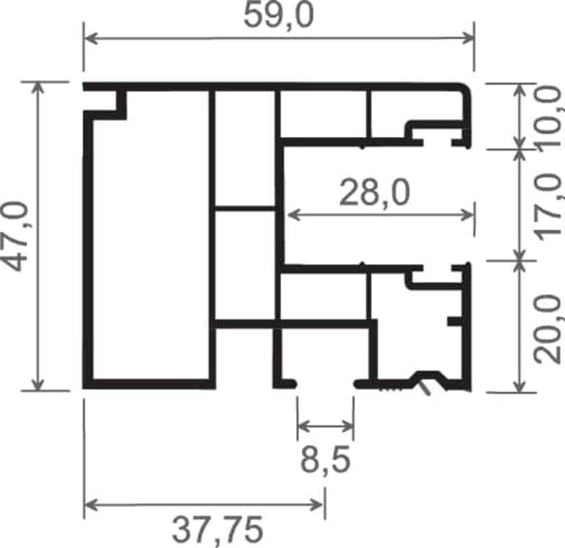
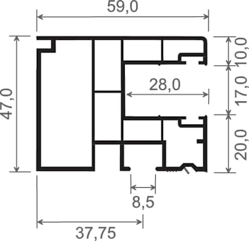
Maxi-Rollladenführung 59x47 mm Lg. 6,50 m foliert, GK Weiß, ohne Bürste 30 8105-167 DUNKELROT [19]
mehr erfahren
Kunststoff