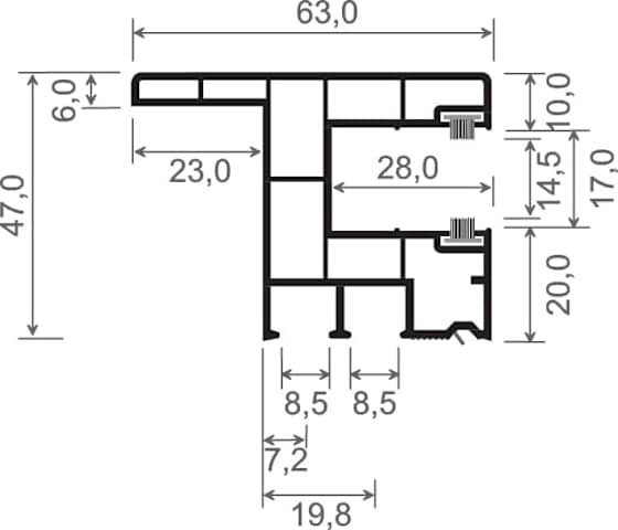
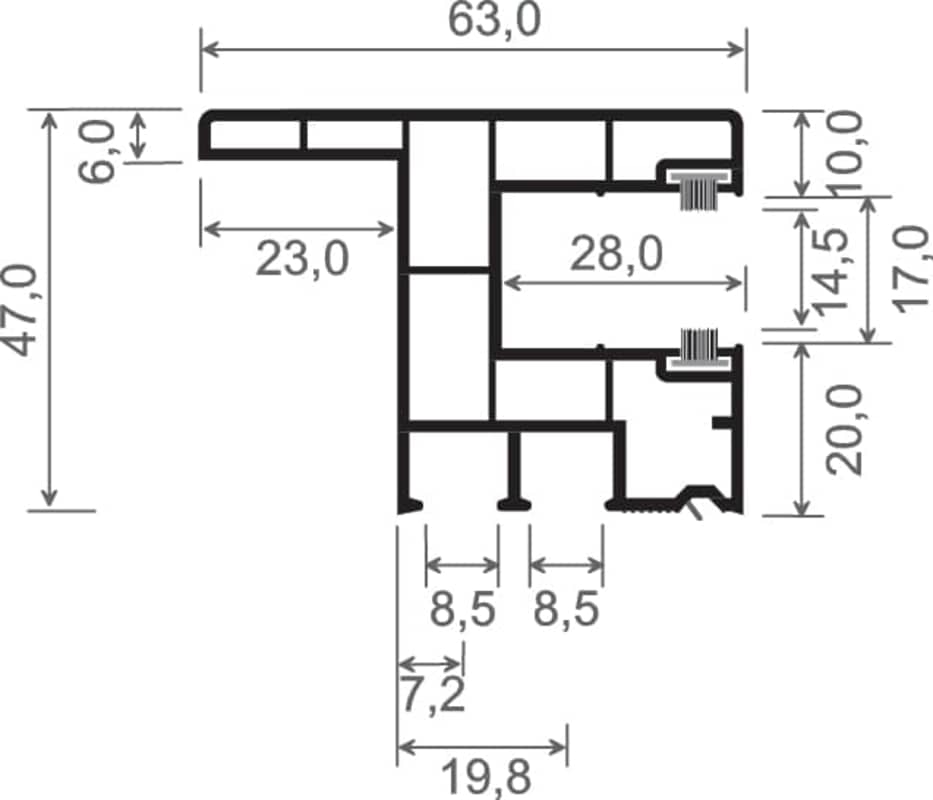
Rollladenführung 63x47 mm Lg. 6,00 m foliert, mit Nase, mit zwei schwarzen Bürsten GK Braun 209 7013-167 MAHAGONI [9]
mehr erfahren
Kunststoff