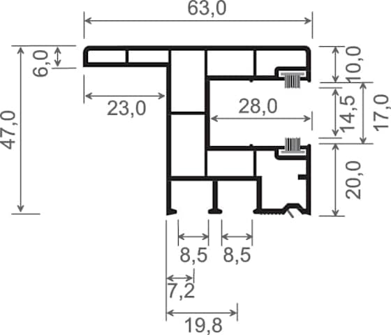
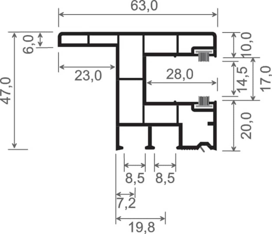
Rollladenführung 63x47 mm Lg. 6,00 m foliert, mit Nase, mit zwei schwarzen Bürsten GK Braun 217 8007-167 NUSSBAUM [14]
mehr erfahren
Kunststoff