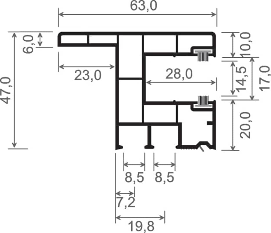
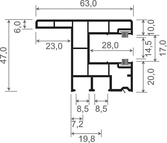
Rollladenführung 63x47 mm Lg. 6,00 m foliert, mit Nase, mit zwei schwarzen Bürsten GK Braun 51 5005-167 STAHLBLAU [45]
mehr erfahren
Kunststoff