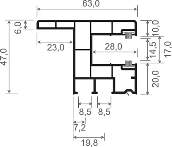
Rollladenführung 63x47 mm Lg. 6,00 m foliert, mit Nase, mit zwei schwarzen Bürsten GK Weiß 60 0505-167 MOOSGRÜN [47]
mehr erfahren
Kunststoff