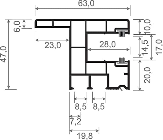
Rollladenführung 63x47 mm Lg. 6,00 m foliert, mit Nase, mit zwei schwarzen Bürsten GK Weiß 71 5505-167 SILBERGRAU [66]
mehr erfahren
Kunststoff