+49 (0) 461 5808-2000
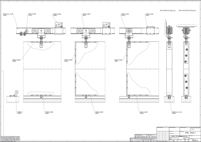
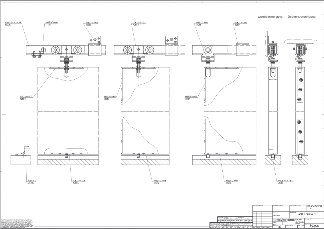
GEZE Doppelrollenwagen Apoll 37; Material: Kunststoff; Flügelgewicht max.: 100 kg; Einsatzbereich: Zimmertür; Basis: Doppelrollenwagen; Befestigungsart: zum Aufschrauben; Rollendurchmesser: 42 mm; Bre